
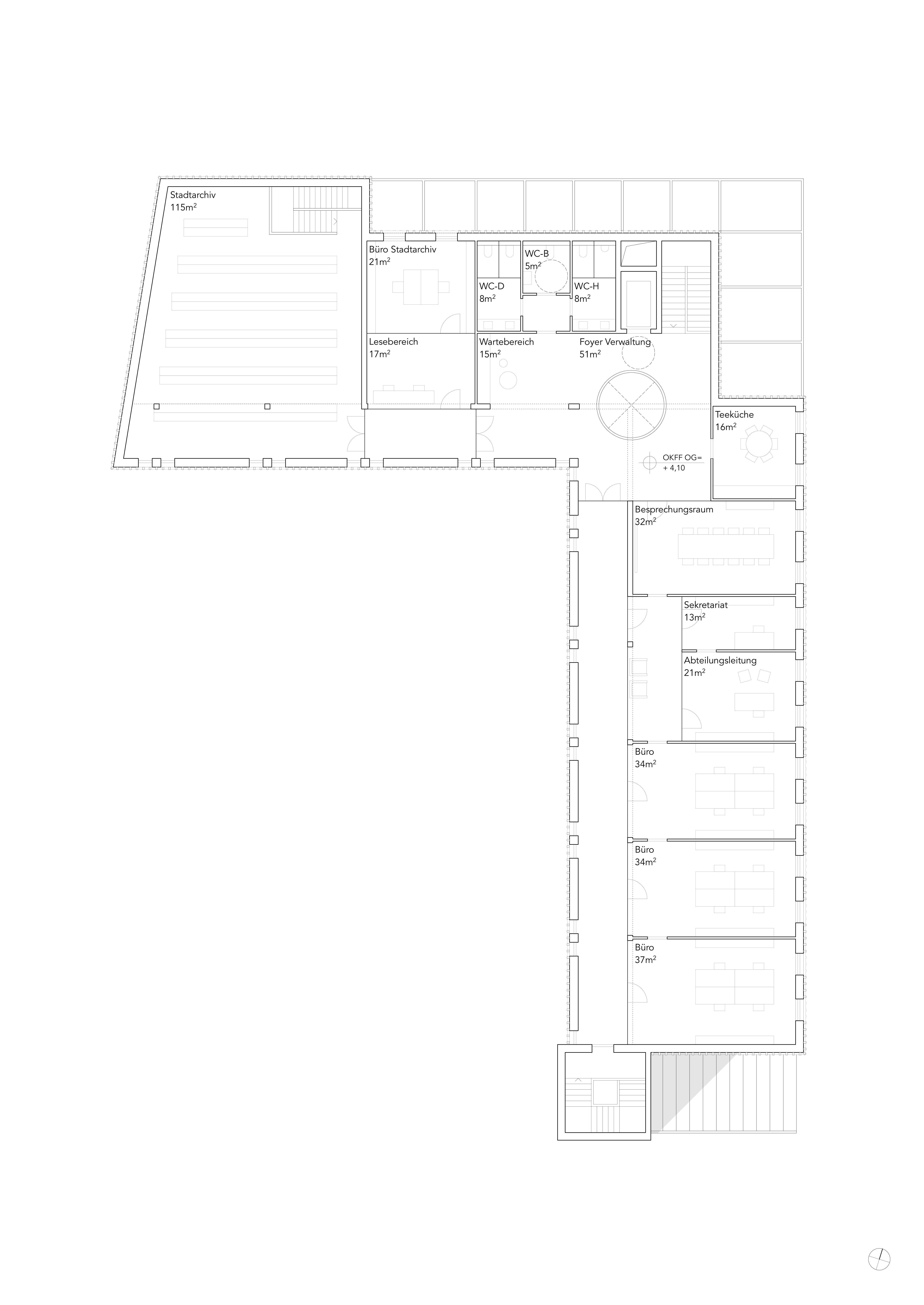
COMMUNITY CENTRE
Location:
Illertissen, Germany
Type: Renovation and repurposing
Project period: 2024
Status: Completed
Area: 1.457 m2 GFA
Phases: Competition
Architects: Kirchberger & Wiegner Rohde in collaboration with Morris & Company

From Parking Lots to a Green Future Garden – The Area Around Illertissen Town Hall is Being Transformed into a Barrier-Free, Biodiverse Urban Garden with Diverse Spaces and Gardens.
The new Citizen Center in the former fire station combines events, administration, and community spaces, focusing on sustainable construction, resource conservation, and renewable energy.











