KU'DAMM PENTHOUSE


Location: Berlin, Germany
Type: Residential
Project period: 2019-2021
Status: Completed
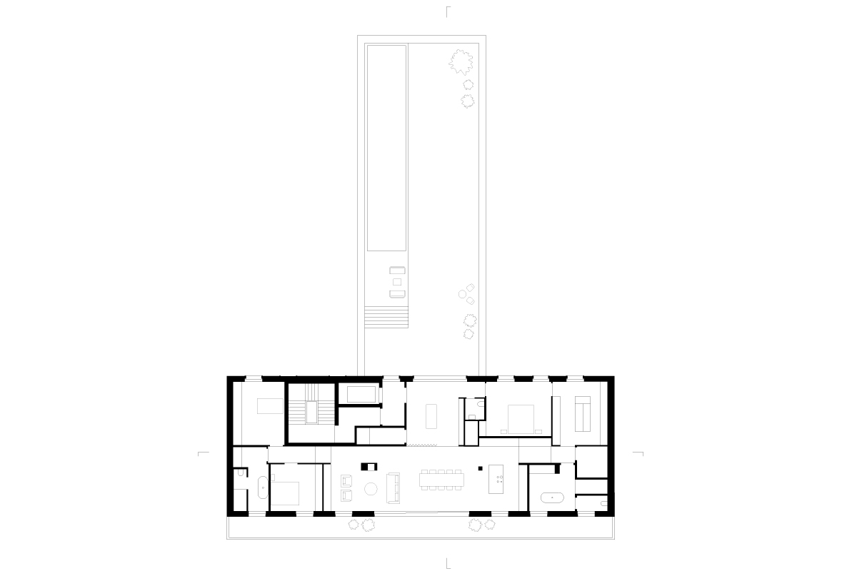
Area: 350 m2 BGF 
Phases: LP1 - LP8
Client: Private
Architects: Kirchberger & Wiegner Rohde

In the building of the former Alhambra cinema on Kurfürstendamm, where the first sound film in Europe was shown at the beginning of the 20th century, a penthouse apartment has been created alongside office and commercial spaces, based on a design by Tchoban Voss Architekten. For this purpose, the building underwent an extensive conversion, the historic façades were restored, and two additional floors plus a recessed top floor were added in a contemporary architectural style. Inside the building, Kirchberger & Wiegner Rohde designed not only the concept store but also the interior of the spacious penthouse for a family, accompanying the project through to its realization. The result is an apartment situated between the urban street front and the 250 sqm roof garden with pool, which—according to the clients’ wishes—treats each room individually, creating a collage of colors, materials, and atmospheres.

For the clients, individual solutions for the numerous built-in furnishings, the use of high-quality materials, and exclusive spatial impressions were of particular importance. K&WR designed custom-made solutions for the bathrooms, furniture, and kitchen, and in extensive sampling sessions, selected all the surfaces of the living unit.


RELATED PROJECTS


Villa Taunus

Maisonette

Apropos Concept Store

Rooftop Duplex