︎
+
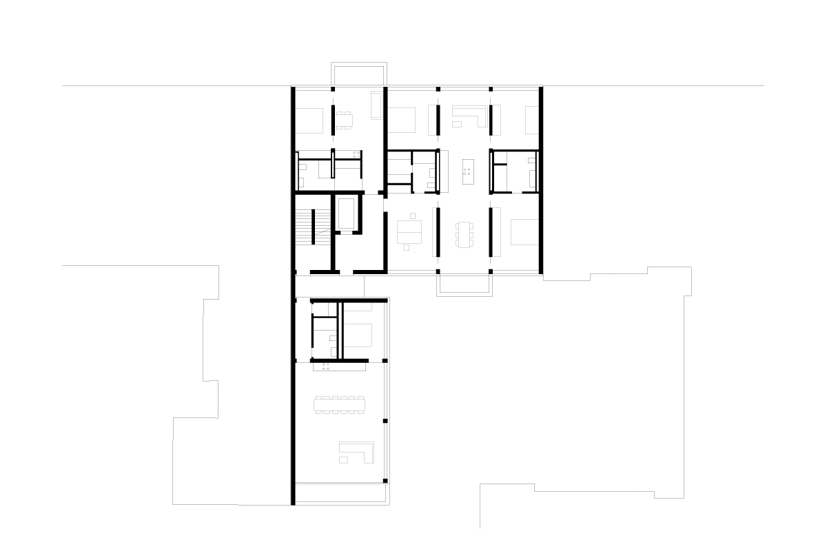
FLEXIBLE LIVING,
SCHIVELBEINER STRAßE, BERLIN, 2014