ALHAMBRA CONCEPT STORE, KU’DAMM, BERLIN        + MORE
                                                                                                           

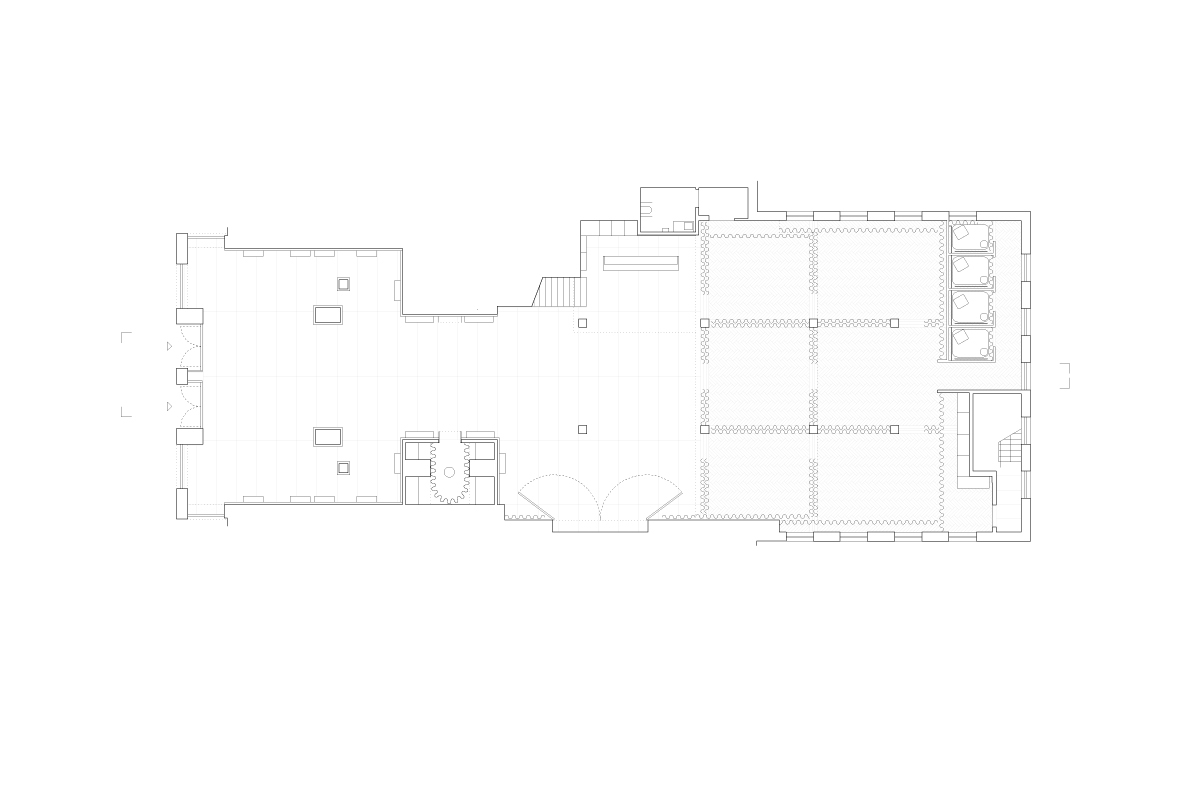
Vier Räume, vier Identitäten. Die Gestaltung der 1.000 qm Retailfläche befasst sich mit der Vielschichtigkeit des Gebäudes. Weite und Intimität, Wärme und Minimalismus, sowie Wandelbarkeit und Identität gehören zu den Kernthemen für das Interior Design. Das Konzept formuliert den zukünftigen Co-Retail- Space als eine Mischung aus Showroom, Galerie, Eventfläche und Store. Unter den Aspekten Innovation, Individualität, Qualität und Exklusivität wird der vorhandene Raum in verschiedene Bereiche und Ebenen untergliedert, die individuelle Inszenierungen von Brands ermöglichen. Auf die historische Außenansicht des Gebäudes folgt im Inneren der Auftakt in Form einer großen Halle. Entschleunigung bietet der Salon im hinteren Bereich, der durch eine geringere Deckenhöhe Intimität und Ruhe vermittelt, während raumtrennende Vorhänge eine zugleich zeitgenössische Atmosphäre für persönliche Beratungen und individuelle Präsentationen der Marken schaffen. Zwischen Halle und Salon befindet sich das Herzstück von ALHAMBRA BERLIN – das Forum als informativer Mittelpunkt In diesem doppelgeschossigen Raum befindet sich eine große Leinwand mit bodenlangen Vorhängen als eine Hommage an die früheren Filmvorführungen im seinerzeit ersten Tonfilmkino Berlins. Das Forum bietet für das zukunftsweisende Retail-Formats Möglichkeiten für mondäne und emotionale Inszenierungen von Brands und Partnern. Im obererhalb des Salons gelegenen Mezzanin bildet eine leuchtende Bar aus Messing und Glas einen Anziehungspunkt. Hier entsteht ein Ort des Verweilens mit offenem Blick in die imposante Halle und das Forum.
Alle Präsentationsmöbel wie Vitrinen, Sockel, Hängeregale, freistehende Kleiderständer etc. folgen dem flexiblen Raumkonzept, das den präsentierenden Designern sind maximale Gestaltungsfreiräume
bietet. Darüber hinaus können unterschiedlichste Raumtypologien realisiert werden, so dass aus dem tagsüber bestehenden, kleinteiligen Store am Abend ein Event-Space für Shows, Lesungen und Parties werden kann.
Die verwendeten Materialien wie unterschiedliche Natursteine, Betonfertigteile, Messing und Holz schaffen trotz der hohen räumlichen Flexibilität eine Atmosphäre von Dauerhaftigkeit und Identität.

Location: Berlin, Germany 
Type: Retail
Project period: 2019-2021
Status: completed 
Area: 1.000 m2 BGF
Phases: LP2 - LP8
Client: Alhambra Berlin
Architects: Kirchberger & Wiegner Rohde